Production information
Material
Baked Steel / Plastics
MOQ
NegotiableSpecification

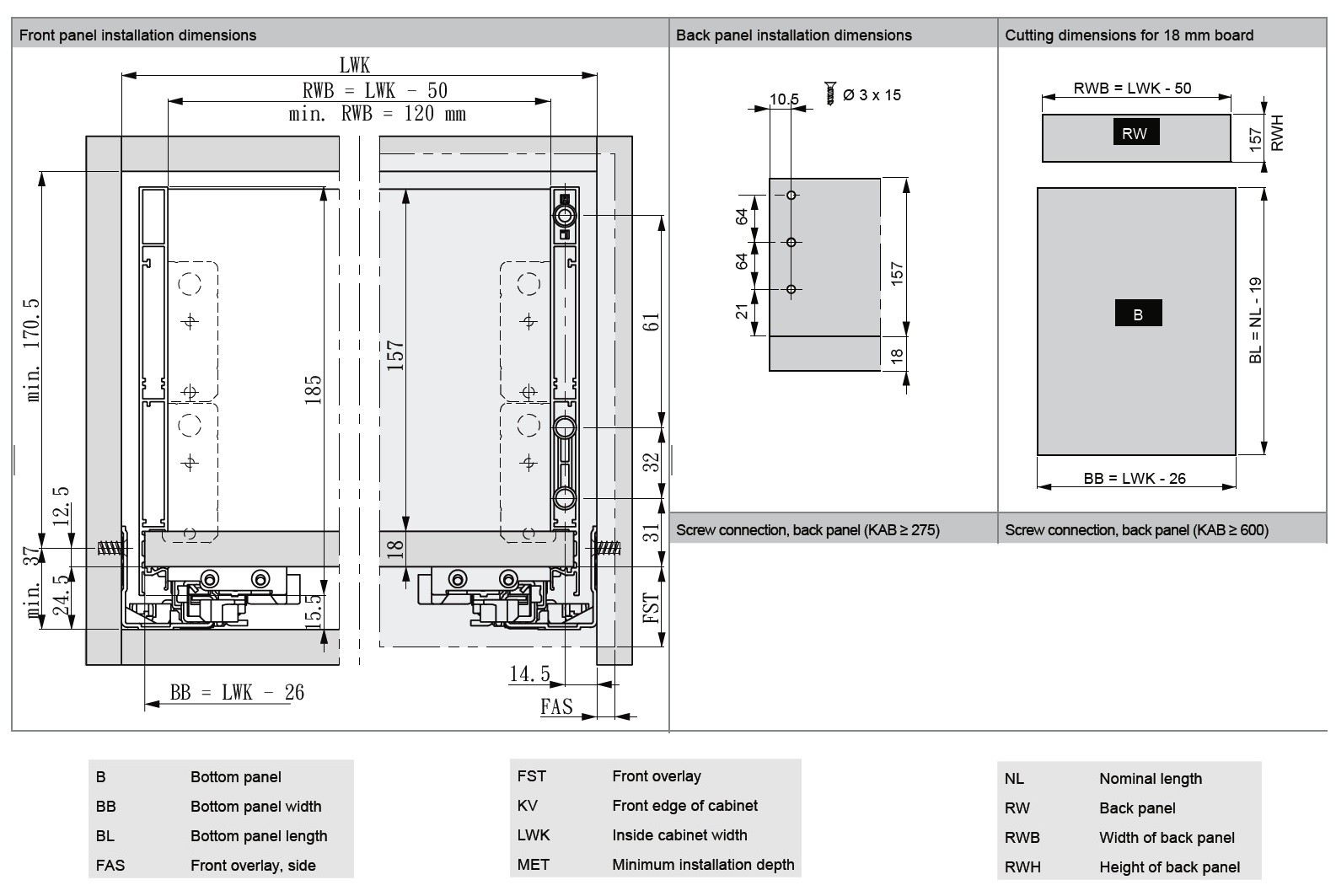
DS2042 Load Capacity: 35KG/450MM(Standard)
Include rear and front connectors


Combine DS2042 to be H185 Slim Line Drawer(DS1403)
DS1403 Specification

DS2042 Load Capacity: 35KG/450MM(Standard)
Include rear and front connectors


Combine DS2042 to be H185 Slim Line Drawer(DS1403)
DS1403 Specification
Instalation





