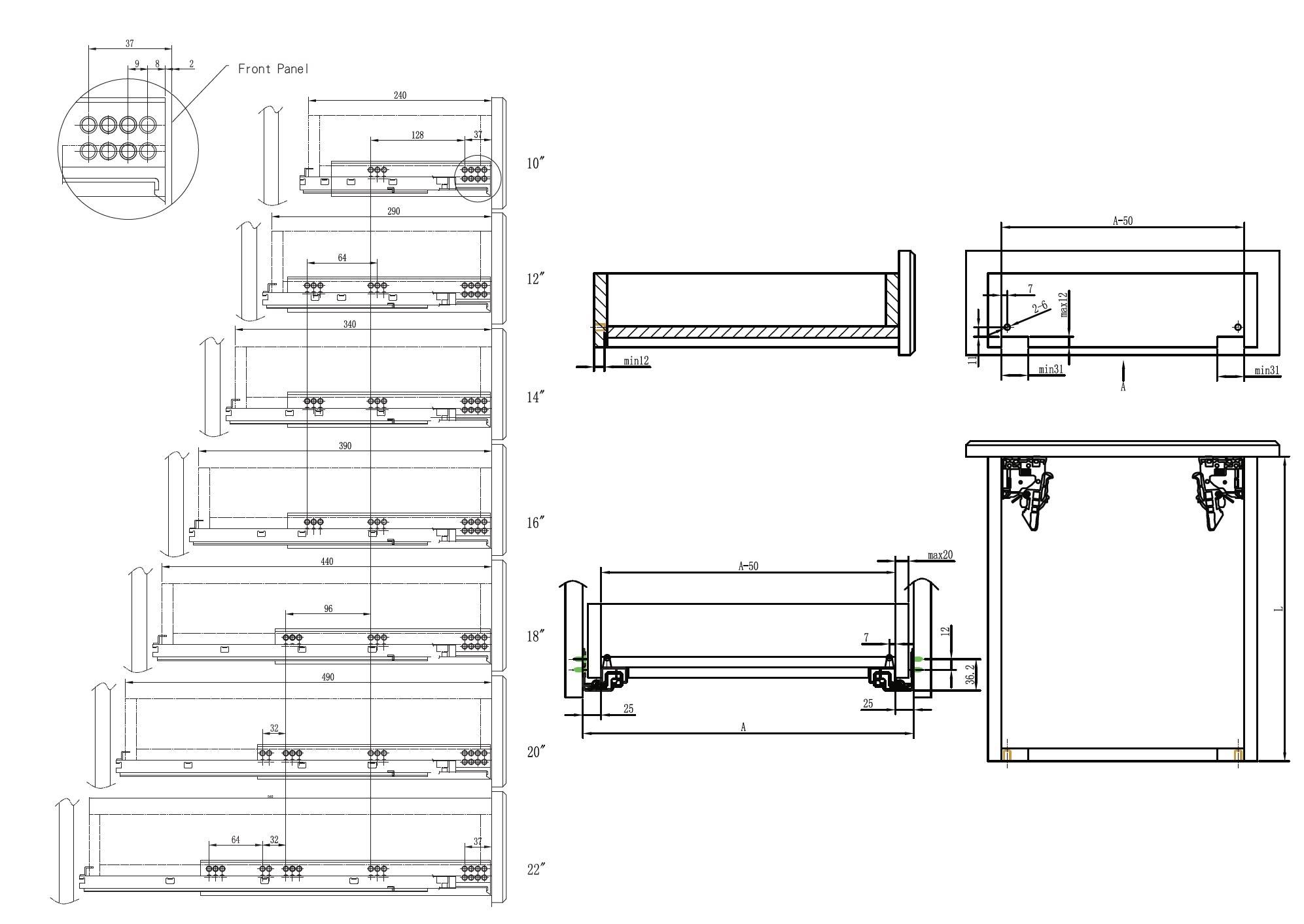
Production information
Material
Nickel-Plated Steel
MOQ
NegotiableSpecification
■ Standard Quality:
SGS Salty Spray Test 48 hrs
Durability 80,000 times
■ Load Capacity:
35KG/450MM(Standard)
■ Length: 250-600mm


